Transform Your Living Room into the Perfect Place to Relax
The living room is the heart of the home. It’s where we entertain guests, relax after a long day of work, and spend quality time with our families. When designed correctly, it can be the perfect place to unwind and recharge. In this article, we’ll explore how to transform your living room into the perfect place to relax.
LIVING ROOMS
The living room is one of the most important rooms in a house. It’s where we spend most of our time with family and friends, and it’s the room that sets the tone for the rest of the home. The living room should be designed to reflect the particular lifestyle of a family.
When designing a living room, one of the key things to keep in mind is that there are no hard and fast rules. The living room has the fewest constraints of any room in the house, so interior designers have a great deal of freedom in terms of the character and configuration of the space.
TYPICAL FURNITURE DIMENSIONS
Specific functional requirements and the size and shape of the room will help set the agenda for selecting and arranging the most appropriate furniture. Below are the dimensions of typical living room furniture. Be mindful that the dimensions of specific pieces may vary from the typical sizes. Furniture that diverges widely in dimension from these examples may be uncomfortable and impractical, however.
The distance between chairs and sofas can influence the behavior of the occupants of a space. Two people sitting across from each other must be within a specific dimensional range for conversation to be comfortable. The behavior of larger groups of people around and across a coffee table is also affected by the relative intimacy of the furniture arrangement.
LIVING ROOM LAYOUTS
A well-designed living room should be functional and comfortable. There are several alternative principals to consider when arranging the furniture in your living room.
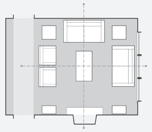
Symmetrical
Using the natural center of a room, furniture is placed around a common axis. A symmetrical layout is the most formal arrangement and works well in traditional or classical settings.
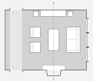
Dual Axis
A dual-axis layout creates a cross axis that focuses attention toward the center of a room, while other features become a backdrop. It works well in modern settings and can be a great way to create a visual focal point.
Local Symmetry
Separate seating areas can make a room feel larger. Using local symmetry can maintain harmony and balance within the room. Local symmetry can be achieved by placing two identical chairs on either side of a fireplace or a pair of bookcases.
Asymmetrical
An asymmetrical layout is the most informal arrangement and works well in contemporary or eclectic settings. Unrelated groupings of furniture can result in a casual atmosphere within a room.
FURNITURE ARRANGEMENT
The way you arrange your furniture can greatly impact the functionality and comfort of your living room. Here are a few tips to consider:
Start with the largest piece of furniture – In most living rooms, the sofa is the largest piece of furniture. Place it in a location that will allow it to be the focal point of the room.
Create a conversation area – Arrange the furniture in a way that will encourage conversation. This is especially important if you entertain guests often.
Consider traffic flow – Make sure there is enough space for people to move around the room comfortably. No one likes to feel cramped or trapped in a space.
Use area rugs – Area rugs can help define different areas within a room. Use a rug to anchor a conversation area or to add color and texture to the space.
Incorporate lighting – Lighting can greatly impact the mood of a room. Use a combination of overhead and task lighting to create a warm and inviting atmosphere.
CONCLUSION
The living room is the heart of the home, and when designed correctly, it can be the perfect place.






